Skip to Main Content
City Hall
Services
Business
Community
How do I...
Home
City Hall
Departments
Community Development
Specific Plans
Marina Station
Marina Station
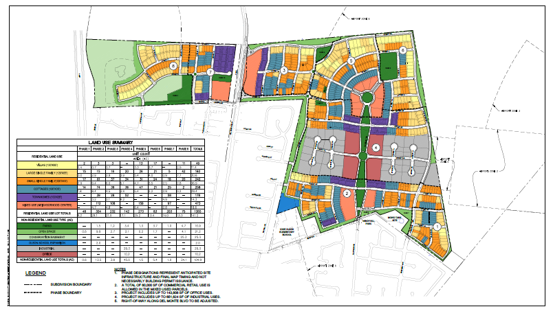
Marina Station Specific Plan Adopted in 2008
Click here to read
Marina Station Map:
Downtown Vitalization
Cypress Knolls
Airport Business Park
Marina Station
The Dunes (University Village)
Sea Haven (Marina Heights)
Loading
Loading
Arrow Left
Arrow Right
[]
Slideshow Left Arrow
Slideshow Right Arrow